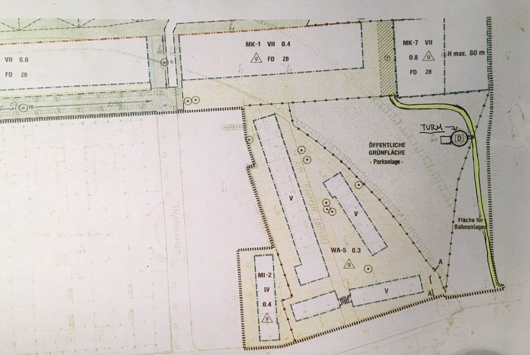
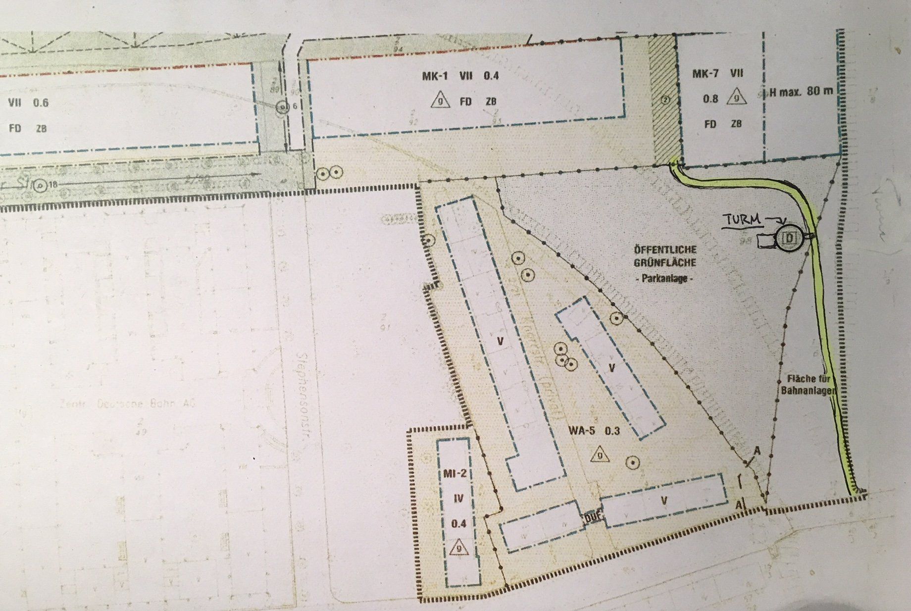
Die Sanierung und die energetische Betreibung des Zauberturms soll auch hinsichtlich der Energiegewinnung und der Nachhaltigkeit vorbildlich sein. Dazu bietet die Situation eines freistehenden Turmgebäudes inmitten eines Pocket-Parks hervorragende Voraussetzungen. Sofern der Verein die Sanierung und Ertüchtigung des Turms in die Hand nehmen darf, werden wir folgende Maßnahmen ins Auge fassen:
Abwasserrückführung
Bereits bei der Abwasserentsorgung möchten wir das Regenwasser nicht in die Kanalisation, sondern in den natürlichen Kreislauf geben. Dazu sollen rund um den Zauberturm Versickerungsrigolen verbaut werden, die das Abwasser in den umgebenen Park weitergeben und somit einen Beitrag zu einem feuchten Mikroklima leisten.
Luft-Wasser-Wärmepumpe
Eine Luft-Wasser-Wärmepumpe nutzt die Umgebungsluft als Wärmequelle, um ein komplettes Gebäude mit Wärme zu versorgen. Im Betrieb saugt ein eingebauter Ventilator die Luft aktiv an und leitet sie an einen Wärmeübertrager, den Verdampfer weiter. Die so gewonnene Wärme lässt sich zum Heizen oder zur Warmwasserbereitung nutzen. Damit leisten wir einen signifikanten Beitrag zur Energieeinsparung.
Vertikale Kleinwindräder
Es ist geplant, in unmittelbarer Umgebung des Zauberturms drei vertikale Kleinwindräder zu installieren. Sie könnten mitten im geplanten Park stehen und damit auch eine skulpturale Wirkung entfalten. Vertikalwindräder sind mittlerweile sehr effektiv und sie haben einige Vorteile gegenüber horizontalen Windkraftanlagen. Sie können oft bei weniger Wind mit der Stromproduktion beginnen und haben weniger Auswirkungen auf die Landschaft mit Schall und Schatten. Zudem können die Windräder in einen geringeren Abstand montiert werden, womit sich mehr Leistung pro Fläche produzieren lässt. Gerade in Städten eignet sich dieser Energielieferant hervorragend. Es ist geplant, den Turm zu 100% mit nachhaltiger Energie zu versorgen.
Leed- Zertifizierung
Es ist geplant, das Gebäude mit der angesehenen LEED-Zertifizierung auszeichnen zu lassen. Hierzu ist angestrebt, die Stufe Gold oder Platinum zu erhalten.









